Algemeen
Heeft u de wens om te wonen in een hele royale (147 m2 woonruimte!) tussenwoning met 5 slaapkamers en een garage die is gelegen op de Bergse Plaat, dan is dit wellicht uw toekomstige woning. De woning is aan de achterzijde uitgebouwd en heeft een dakopbouw. Hierdoor beschikt de woning over een grote woonkamer met open keuken en een garage op de begane grond. Op de 1e verdieping bevinden zich 3... Meer informatie
-
Kenmerken
Alle kenmerken Type object Woonhuis, eengezinswoning, tussenwoning Bouwperiode 1995 Status Nieuw in verkoop Aangeboden sinds Vrijdag 30 januari 2026 -
Locatie
Kenmerken
| Overdracht | |
|---|---|
| Referentienummer | 00411 |
| Vraagprijs | € 495.000,- k.k. |
| Inrichting | Niet gestoffeerd |
| Inrichting | Niet gemeubileerd |
| Status | Nieuw in verkoop |
| Aanvaarding | In overleg |
| Aangeboden sinds | Vrijdag 30 januari 2026 |
| Bouw | |
|---|---|
| Type object | Woonhuis, eengezinswoning, tussenwoning |
| Soort bouw | Bestaande bouw |
| Bouwperiode | 1995 |
| Dakbedekking | Bitumen |
| Type dak | Platdak |
| Isolatievormen | Volledig geïsoleerd |
| Oppervlaktes en inhoud | |
|---|---|
| Perceeloppervlakte | 210 m² |
| Woonoppervlakte | 147 m² |
| Inhoud | 546 m³ |
| Oppervlakte overige inpandige ruimten | 15 m² |
| Oppervlakte externe bergruimte | 8,25 m² |
| Indeling | |
|---|---|
| Aantal bouwlagen | 3 |
| Aantal kamers | 6 (waarvan 5 slaapkamers) |
| Aantal badkamers | 1 (en 1 apart toilet) |
| Locatie | |
|---|---|
| Ligging | Dichtbij openbaar vervoer, In woonwijk, Nabij school |
| Tuin | |
|---|---|
| Type | Achtertuin |
| Hoofdtuin | Ja |
| Oriëntering | Oosten |
| Heeft een achterom | Ja |
| Staat | Normaal |
| Energieverbruik | |
|---|---|
| Energielabel | B |
| CV ketel | |
|---|---|
| CV ketel | Remeha Tzerra Ace |
| Warmtebron | Gas |
| Bouwjaar | 2022 |
| Combiketel | Ja |
| Eigendom | Eigendom |
| Uitrusting | |
|---|---|
| Warm water | CV-ketel |
| Verwarmingssysteem | Centrale verwarming, Gashaard |
| Ventilatie methode | Mechanische ventilatie |
| Keukenvoorzieningen | Inbouwapparatuur |
| Badkamervoorzieningen | Ligbad, Toilet, Wastafel |
| Parkeergelegenheid | Inpandige garage |
| Heeft kabel-tv | Ja |
| Heeft een rookkanaal | Ja |
| Heeft een frans balkon | Ja |
| Glasvezelaansluiting aanwezig | Ja |
| Tuin aanwezig | Ja |
| Heeft een garage | Ja |
| Beschikt over een internetverbinding | Ja |
| Heeft rolluiken | Ja |
| Heeft schuur/berging | Ja |
| Heeft ventilatie | Ja |
| Kadastrale gegevens | |
|---|---|
| Kadastrale aanduiding | Bergen op Zoom M 549 |
| Perceeloppervlakte | 210 m² |
| Omvang | Geheel perceel |
| Eigendomsituatie | Eigen grond |
Beschrijving
Heeft u de wens om te wonen in een hele royale (147 m2 woonruimte!) tussenwoning met 5 slaapkamers en een garage die is gelegen op de Bergse Plaat, dan is dit wellicht uw toekomstige woning. De woning is aan de achterzijde uitgebouwd en heeft een dakopbouw. Hierdoor beschikt de woning over een grote woonkamer met open keuken en een garage op de begane grond. Op de 1e verdieping bevinden zich 3 slaapkamers, een wasruimte en een badkamer. In de dakopbouw op de 2e verdieping, welke met een vaste trap bereikbaar is, bevinden zich nog eens 2 slaapkamers. Achter de woning bevindt zich een onderhoudsvriendelijke, nette tuin (met achterom en berging) waar het heerlijk zitten is in de zon. De woning is prima onderhouden.
De woning is gelegen vlakbij winkelcentrum Het Kompas. Andere voorzieningen zoals het strand met alle horecavoorzieningen op de boulevard van de Bergse Plaat, het zwembad De Schelp en de basisscholen liggen allemaal in de nabijheid van de woning. De uitvalsweg van de Bergse Plaat richting het stadscentrum of de autosnelwegen A4/A58 ligt echt om de hoek.
Zoekt u een royale woning met 5 slaapkamers met een keurige tuin en een garage die ook nog eens prima is onderhouden, bel dan voor een afspraak voor een vrijblijvende bezichtiging.
De woning is gelegen vlakbij winkelcentrum Het Kompas. Andere voorzieningen zoals het strand met alle horecavoorzieningen op de boulevard van de Bergse Plaat, het zwembad De Schelp en de basisscholen liggen allemaal in de nabijheid van de woning. De uitvalsweg van de Bergse Plaat richting het stadscentrum of de autosnelwegen A4/A58 ligt echt om de hoek.
Zoekt u een royale woning met 5 slaapkamers met een keurige tuin en een garage die ook nog eens prima is onderhouden, bel dan voor een afspraak voor een vrijblijvende bezichtiging.
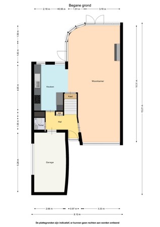
Indeling
Hal
De woning wordt aan de voorzijde betreden in de hal. Deze biedt toegang tot de woonkamer, de keuken, het toilet en de garage. In de hal bevinden zich ook de fraai beklede trapopgang naar de 1e verdieping en de meterkast. Deze is uitgerust met 7 elektragroepen en 1 aardlekschakelaar.
Woonkamer
De woonkamer is in 2001 aan de achterzijde uitgebouwd. Door de vele raampartijen kent de woonkamer veel lichtinval. De tuindeuren maken hierbij de verbinding met de nette achtertuin. De uitbouw heeft gezorgd voor een ruime, gezellige woonkamer mede door de aanwezige schouw met gashaard. De woonkamer staat in open verbinding met de keuken. Op de scheiding van de keuken en de woonkamer is een ruime vaste bergkast (onder de trap) aanwezig. De woonkamer is afgewerkt met gespoten wanden en plafond. Op de vloer van de woonkamer ligt een nette, vernieuwde (2024) laminaatvloer.
Keuken
De open keuken is naast de woonkamer gelegen en is ook vanuit de hal toegankelijk. De keuken, die in 2016 is vernieuwd, is in 2 delen langs de wanden opgesteld. De keuken beschikt over lades, onder- en bovenkasten, een kunststof werkblad met spoelbak en een mengkraan. Ingebouwd zijn een 5-pits gaskookplaat met hierboven de afzuigkap, een combi-oven/grill, een vaatwasser en aan de andere zijde een koel-vries combinatie. De achterwand tussen werkblad en bovenkasten is afgewerkt met afwasbaar plaatmateriaal. Verder is de afwerking van wanden, vloer en plafond gelijk aan de afwerking van de woonkamer.
Toilet
Het toilet in de hal beschikt over een hangcloset en fontein. De vloer en de wanden zijn tot halve hoogte betegeld. Hierboven zijn de wanden en het plafond afgewerkt met spuitwerk.
Garage
Vanuit de hal kan de garage worden betreden waar plaats is voor 1 auto. De garage beschikt over een sectionaaldeur en een betonnen vloer. De garage geeft ook voldoende bergruimte.
De woning wordt aan de voorzijde betreden in de hal. Deze biedt toegang tot de woonkamer, de keuken, het toilet en de garage. In de hal bevinden zich ook de fraai beklede trapopgang naar de 1e verdieping en de meterkast. Deze is uitgerust met 7 elektragroepen en 1 aardlekschakelaar.
Woonkamer
De woonkamer is in 2001 aan de achterzijde uitgebouwd. Door de vele raampartijen kent de woonkamer veel lichtinval. De tuindeuren maken hierbij de verbinding met de nette achtertuin. De uitbouw heeft gezorgd voor een ruime, gezellige woonkamer mede door de aanwezige schouw met gashaard. De woonkamer staat in open verbinding met de keuken. Op de scheiding van de keuken en de woonkamer is een ruime vaste bergkast (onder de trap) aanwezig. De woonkamer is afgewerkt met gespoten wanden en plafond. Op de vloer van de woonkamer ligt een nette, vernieuwde (2024) laminaatvloer.
Keuken
De open keuken is naast de woonkamer gelegen en is ook vanuit de hal toegankelijk. De keuken, die in 2016 is vernieuwd, is in 2 delen langs de wanden opgesteld. De keuken beschikt over lades, onder- en bovenkasten, een kunststof werkblad met spoelbak en een mengkraan. Ingebouwd zijn een 5-pits gaskookplaat met hierboven de afzuigkap, een combi-oven/grill, een vaatwasser en aan de andere zijde een koel-vries combinatie. De achterwand tussen werkblad en bovenkasten is afgewerkt met afwasbaar plaatmateriaal. Verder is de afwerking van wanden, vloer en plafond gelijk aan de afwerking van de woonkamer.
Toilet
Het toilet in de hal beschikt over een hangcloset en fontein. De vloer en de wanden zijn tot halve hoogte betegeld. Hierboven zijn de wanden en het plafond afgewerkt met spuitwerk.
Garage
Vanuit de hal kan de garage worden betreden waar plaats is voor 1 auto. De garage beschikt over een sectionaaldeur en een betonnen vloer. De garage geeft ook voldoende bergruimte.
Eerste verdieping
De fraai beklede trapopgang in de hal komt uit op de ruime U-vormige overloop van de 1e verdieping. Deze is speels vormgegeven met aan de voorzijde van de overloop een frans balkon. De overloop geeft toegang tot 3 slaapkamers, de wasruimte en de badkamer.
Slaapkamer 1 (ca. 13,5 m2)
Deze slaapkamer is aan de voorzijde van de woning gelegen. Een vaste kast voor kleding is aanwezig. De wanden zijn afgewerkt met stucwerk en het plafond is afgewerkt met spuitwerk. Op de vloer ligt laminaat.
Slaapkamer 2 (ca. 12 m2)
Deze slaapkamer is aan de achterzijde gelegen en wordt nu gebruikt als werk-/studeerkamer. De afwerking is gelijk aan de afwerking van slaapkamer 1.
Slaapkamer 3 (ca. 6,75 m2)
Aan de andere zijde van de overloop ligt aan de achterzijde van de woning deze slaapkamer. De kamer is nu in gebruik als kastenkamer. De afwerking is gelijk aan de afwerking van slaapkamer 1 en 2.
Badkamer
Deze is aan de voorzijde van de woning gelegen en in 2020 vernieuwd. De met een designradiator verwarmde badkamer is uitgerust met een ligbad, een hangtoilet (Sanibroyeur) en een badmeubel met ingebouwde wastafel en spiegel. De wanden zijn afgewerkt met plaatmateriaal, de vloer is betegeld en het plafond is afgewerkt met spuitwerk.
Wasruimte
Tussen slaapkamer 3 en de badkamer is de wasruimte gelegen. In deze ruimte zijn de aansluitingen aanwezig voor de wasmachine en de wasdroger. Tevens hangen hier de MV-box en de cv-ketel. De cv-ketel betreft een Remeha Tzerra van het bouwjaar 2022 die in 2023 is geplaatst.
Slaapkamer 1 (ca. 13,5 m2)
Deze slaapkamer is aan de voorzijde van de woning gelegen. Een vaste kast voor kleding is aanwezig. De wanden zijn afgewerkt met stucwerk en het plafond is afgewerkt met spuitwerk. Op de vloer ligt laminaat.
Slaapkamer 2 (ca. 12 m2)
Deze slaapkamer is aan de achterzijde gelegen en wordt nu gebruikt als werk-/studeerkamer. De afwerking is gelijk aan de afwerking van slaapkamer 1.
Slaapkamer 3 (ca. 6,75 m2)
Aan de andere zijde van de overloop ligt aan de achterzijde van de woning deze slaapkamer. De kamer is nu in gebruik als kastenkamer. De afwerking is gelijk aan de afwerking van slaapkamer 1 en 2.
Badkamer
Deze is aan de voorzijde van de woning gelegen en in 2020 vernieuwd. De met een designradiator verwarmde badkamer is uitgerust met een ligbad, een hangtoilet (Sanibroyeur) en een badmeubel met ingebouwde wastafel en spiegel. De wanden zijn afgewerkt met plaatmateriaal, de vloer is betegeld en het plafond is afgewerkt met spuitwerk.
Wasruimte
Tussen slaapkamer 3 en de badkamer is de wasruimte gelegen. In deze ruimte zijn de aansluitingen aanwezig voor de wasmachine en de wasdroger. Tevens hangen hier de MV-box en de cv-ketel. De cv-ketel betreft een Remeha Tzerra van het bouwjaar 2022 die in 2023 is geplaatst.
Tweede verdieping
Deze verdieping is in 2001 op de woning geplaatst en wordt bereikt via een vaste trap. Door de rechte vorm van de opbouw zijn op deze verdieping 2 ruime slaapkamers gecreëerd.
Slaapkamer 4 (ca. 16,5 m2)
Deze ruime kamer is gelegen onder het dak. Omdat zowel aan de voorzijde als aan de achterzijde een groot raam aanwezig is, is er veel licht in deze slaapkamer. De wanden en het plafond zijn afgewerkt met stucwerk en op de vloer ligt laminaat.
Slaapkamer 5 (ca. 12,75 m2)
Deze kamer ligt aan de andere zijde van de trap en beschikt eveneens over grote ramen. Ook in deze kamer bevindt zich een vaste inbouwkast. De afwerking is gelijk aan de afwerking van slaapkamer 4.
Slaapkamer 4 (ca. 16,5 m2)
Deze ruime kamer is gelegen onder het dak. Omdat zowel aan de voorzijde als aan de achterzijde een groot raam aanwezig is, is er veel licht in deze slaapkamer. De wanden en het plafond zijn afgewerkt met stucwerk en op de vloer ligt laminaat.
Slaapkamer 5 (ca. 12,75 m2)
Deze kamer ligt aan de andere zijde van de trap en beschikt eveneens over grote ramen. Ook in deze kamer bevindt zich een vaste inbouwkast. De afwerking is gelijk aan de afwerking van slaapkamer 4.
Tuin
De achter de woning gelegen tuin is gericht op het oosten en is netjes onderhouden. Door de ligging van de tuin heb je het grootste deel van de dag veel zon in de tuin. De tuin is aangelegd met bestrating, plantenborders en enkele bomen. Achter in de tuin staat de berging. De tuin is omheind met een houten schutting (vernieuwd in 2024) tussen stenen pinanten en heeft een achterom die uitkomt op de achter de woning gelegen brandgang.
Bijzonderheden
* De woning is gelegen op de Bergse Plaat nabij de Boulevard en winkelcentrum het Kompas
* Royale woning met 5 slaapkamers en een garage
* De woonruimte is fors vergroot door de aanbouw en opbouw
* De woning is volledig geïsoleerd
* De woning beschikt over energielabel B
* De woning beschikt grotendeels over rolluiken/screens deels elektrisch bedienbaar
* De woning is prima onderhouden
* Vrij parkeren voor de deur
* Royale woning met 5 slaapkamers en een garage
* De woonruimte is fors vergroot door de aanbouw en opbouw
* De woning is volledig geïsoleerd
* De woning beschikt over energielabel B
* De woning beschikt grotendeels over rolluiken/screens deels elektrisch bedienbaar
* De woning is prima onderhouden
* Vrij parkeren voor de deur